Phase 2: CCSD15 Project Scope

Location: Hoffman Estates and Palatine, Illinois

Typology: School Additions and Renovations

Date: Spring 2023 - August 2024 (Project Completion)

Software Used: Revit, AutoCad, Bluebeam, PhotoShop

Project Role: Architectural Support

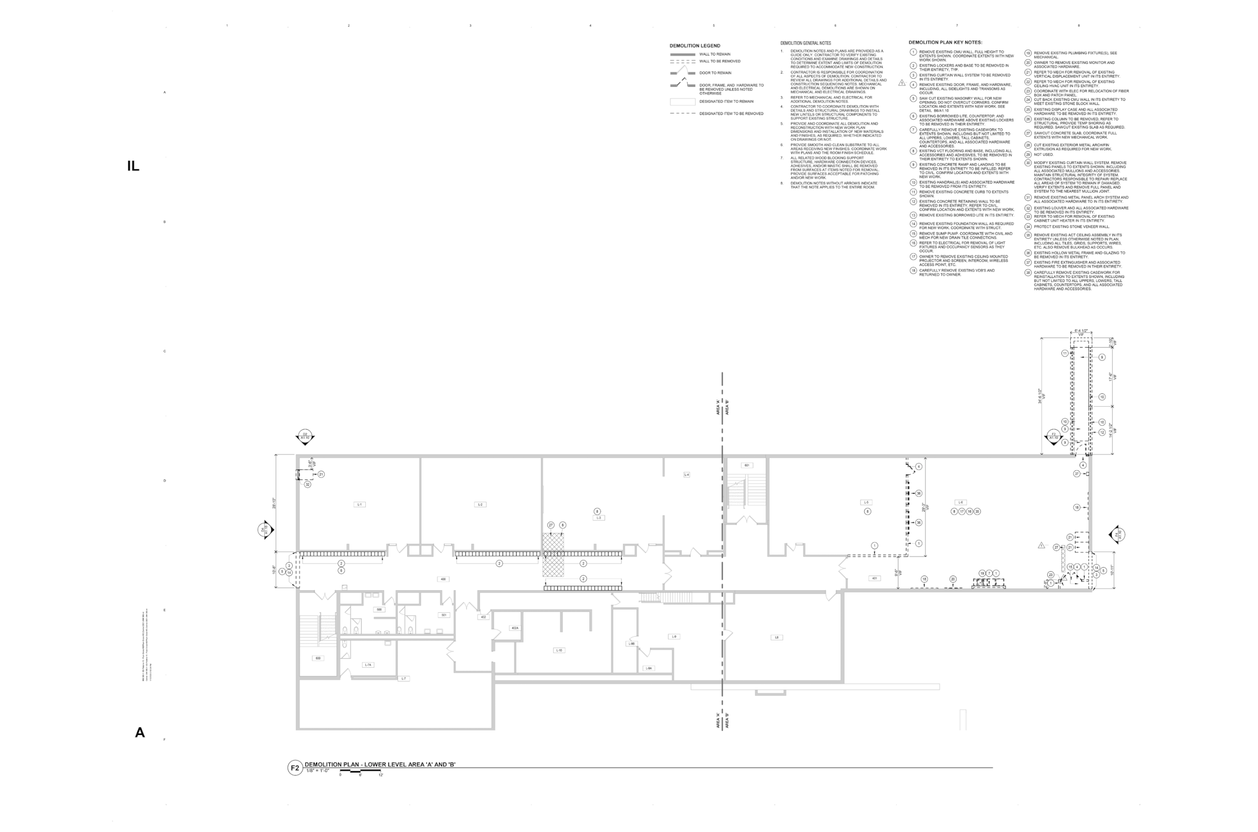
As part of the Community Consolidated District 15 (CCSD15) Referendum in November of 2022, approved a $93 Million Dollar construction package across the 20 school district. Each school received a different form of renovations, and only select schools received renovations. At Wold, we completed construction across seven of the district’s schools. Broken up into two phases, phase one consisted of the $20 million dollar project, focussing on the two, three story additions at Plum Grove Elementary School. This was my first project, where I started in Design Development (DD) and continued till Project Completion. This was an incredible experience, seeing every detail from design, permitting, construction meetings, community events, and closing out. I claim this project as the first project where I felt like a true and well-rounded architect.

Client: Plum Grove Middle School - CCSD15

Architect: Wold Architects and Engineers (Palatine, IL Office)

Exterior Construction of Plu (Wold Architects and Engineers)

DEDICATED TASKS

PROJECT HIGHLIGHTS

PROJECT CHALLENGES

Photo: User Group furniture meeting minutes following the Riley Northlake Project being issued. Alongside reviewing submittals and RFIs, I was working on a furniture package for the Berkeley School District with our IL interior design Monica McCrory. This was a great opportunity to not only meet the district but also perfecting my meeting minute skills. With this furniture package, we’d spatially plan, create renderings, pick colors, fabrics, and heights. We essentially issued a drawing set, showing tagged furniture and schedules, along with hundreds of excel spreadsheets.