MacArthur Middle School and Sunnyside Elementary School

Location: Berkeley, Illinois

Typology: New School Building

Date: Summer 2021 - Summer 2022 (Project Completion)

Software Used: Revit, AutoCad, Bluebeam, PhotoShop

Project Role: Architectural Support

My second, large scale project at Wold was the new Sunnyside and MacArthur school, also known as the ‘New 3-8 School’ in the Palatine office. Starting in the Spring of 2021, I was added to this project to assist with the Construction Document phase of the project. This was my first project located in a Illinois, under my new project manager Jessalyn Kelly, and continued working out of Minnesota.

Client: MarArthur Middle School and Sunnyside Intermediate School - Berkeley SD 87

Architect: Wold Architects and Engineers (Palatine, IL Office)

Exterior Rendering of Sunnyside / MacArthur Schools (Wold Architects and Engineers)

DEDICATED TASKS

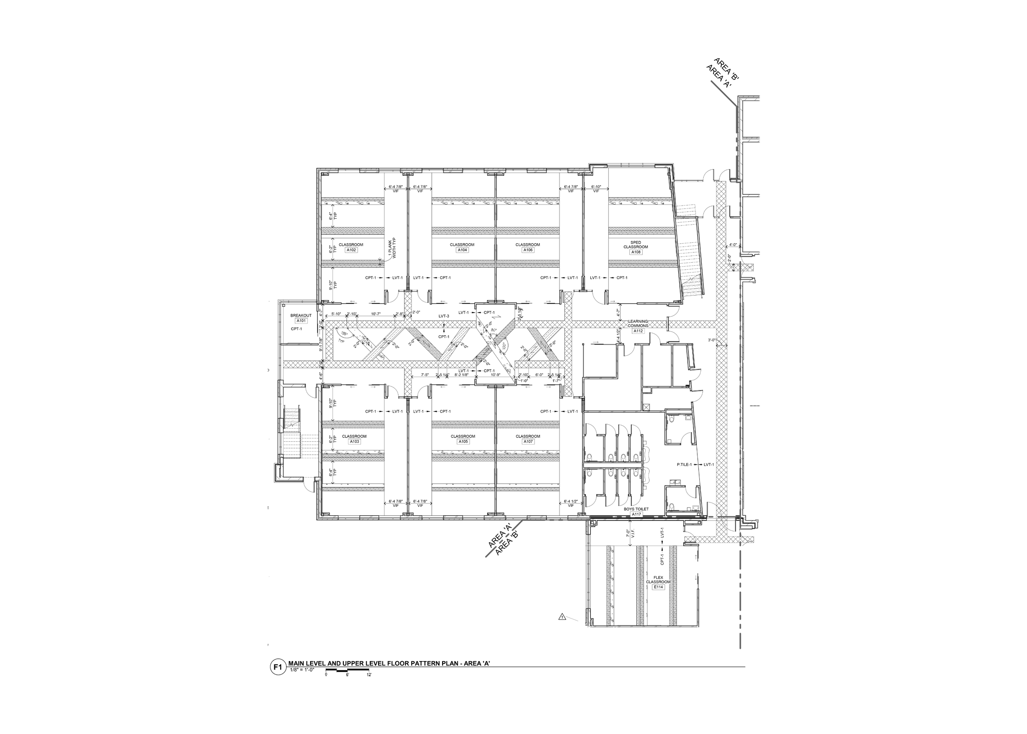
- Floor Finish Plans: Drawing the carpet patterns, gymnasium striping, and LVT patterns was a large task, given the complex lines and angles that the team created. In fact, these complex angles and lines were inspired by the nearby Metra and industrial train tracks.

- Interior and Casework Elevations: Understanding the firm’s interior standards, I was tasked to clean up the proposed elevations by detailing and addressing any issues. Each school had a distinct look, where yellow

- Reflected Ceiling Plans: Similar with the interior elevations, because I have experience with ceiling work from previous projects, I got tasked to detail and layout the proposed ceiling plans and coordinate with our electrical engineers. We were using in-house engineers, so it was a great opportunity to meet the other trades at our firm.

- Construction Punch-List: In the Summer of 2022, I was given the opportunity to start attending construction meetings, I only went to a few but it was a great introduction to the cadence of those meetings. I was also involved in the punch-listing this school when it was completed. Working with my Job Captain, Adam Moore, we were able to punch-list this school within a day. Luckily, the Construction Manager for this project, Gilbane, uses the Procore software which speeds up the punch-list process greatly.

(Photo: Finished photo of the Cafeteria)

PROJECT HIGHLIGHTS

This was the project where I felt my Revit skills and knowledge of the firm’s standards started to come together. Using my knowledge from the Mora project, I understood the expectations in detailing, as well as how construction documents should look like. Implementing those skills in this project, allowed me to start working on tasks that were new to me.

PROJECT CHALLENGES

I was very lucky in my early professional years getting new building construction projects, mainly because there are far less issues in general. The main challenge with this project was dealing with COVID and working with a team out of state. It was an acquired skill, learning how to communicate with a team hundreds of miles away and getting an answer at a reasonable speed.

Being a newer employee, at this time I was less than one year into my career, this was an exciting new project that allowed me to learn company standards and progress my detailing skills. Detailing the Learning Commons was a memorable task; when Adam and I went to take professional photos, it was pleasant to see how each space was being used by students and teachers. Specifically at Sunnyside, where we witnessed students creating art projects in both the STEM Labs, Art Rooms, and the Library. This was our design goal, integrating classroom teaching in collaborative settings.